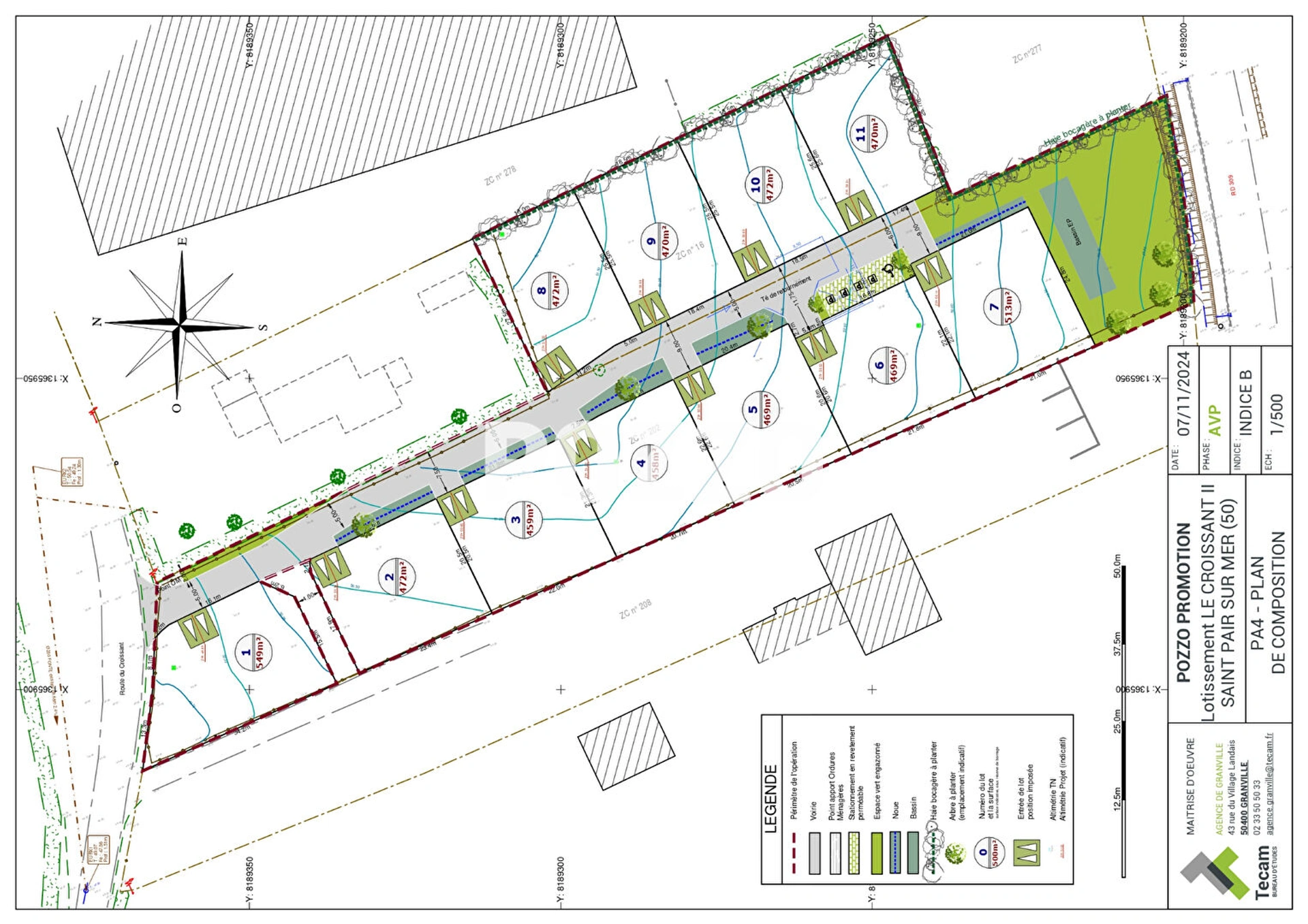
Terrain à bâtir de 549 m² Saint Pair Sur Mer - Lot 1
SAINT PAIR SUR MER

Exclusivité
Terrain à bâtir de 549 m² Saint Pair Sur Mer - Lot 1 - 50380 SAINT PAIR SUR MER Réf 50618-01
149 000 €Honoraires à la charge du vendeur
549m²
Description du bien
Dans un futur lotissement composé de 11 lots, terrain à bâtir d'environ 549 m², viabilisé (eau, électricité, tout-à-l'égout, télécom).
Le terrain est libre de constructeur. Réalisez la maison de vos rêves, selon vos envies!

Environnement calme et agréable. Proche des commodités : commerces, écoles, services à quelques minutes.
La plage est à moins de 2 km. L'endroit idéal pour construire votre résidence principale, secondaire ou investir.
Un cadre de vie agréable entre mer et campagne, dans une commune dynamique du littoral normand.

Les informations sur les risques auxquels ce bien est exposé sont disponibles sur le site Géorisques : www.georisques.gouv.fr.

Renseignements et visites sur demande ? Ne tardez pas, les lots sont limités !
Les informations sur les risques auxquels ce bien est exposé sont disponibles sur le site Géorisques : www.georisques.gouv.fr.

Les informations sur les risques auxquels ce bien est exposé sont disponibles sur le site Géorisques : www.georisques.gouv.fr.
Bilan énergétique
Barème d'honoraires
Partager ce contenu
Saint-Pair-sur-Mer immatriculé(e) .
Conformément aux articles L611-1 et suivants et R612-1 et suivants du Code de la consommation, le consommateur est informé qu’il a la possibilité de saisir un ou notre médiateur de la consommation, à savoir situé

Echangeons ensemble

Agence
Saint-Pair-sur-Mer
02 33 50 06 31
1 Place Charles de Gaulle 50380 Saint-Pair-sur-Mer
Prenez contact avec nous afin que nous puissions échanger sur vos projets immobiliers à Normandie. N’hésitez pas à utiliser ce formulaire pour décrire vos projets et vos attentes.
Loading...
Les informations recueillies sur ce formulaire sont enregistrées dans un fichier informatisé par Pozzo pour gérer votre demande de contact. Elles sont conservées pour la durée nécessaire à la gestion de la relation client dans le respect des prescriptions légales applicables et sont destinées au responsable de la publication de ce site : Pozzo.
Conformément à la loi « informatique et libertés », vous pouvez exercer votre droit d'accès aux données vous concernant et les faire rectifier en contactant Pozzo contact@pozzo.immo ou en utilisant ce formulaire. Nous vous informons de l’existence de la liste d'opposition au démarchage téléphonique « Bloctel », sur laquelle vous pouvez vous inscrire ici : https://www.bloctel.gouv.fr/

Découvrez des biens similaires

50300 SAINT LOUP
50420 TESSY BOCAGE
  • 41 m²
  • 3 pièces
  • 1 chambres
25 000 €
50530 SAINT JEAN LE THOMAS
  • 1500 m²
  • N.C.
  • N.C.
135 000 €
14310 MAISONCELLES PELVEY
Exclusivité
50150 SOURDEVAL
14370 MOULT CHICHEBOVILLE
  • 1400 m²
  • N.C.
  • N.C.
179 000 €