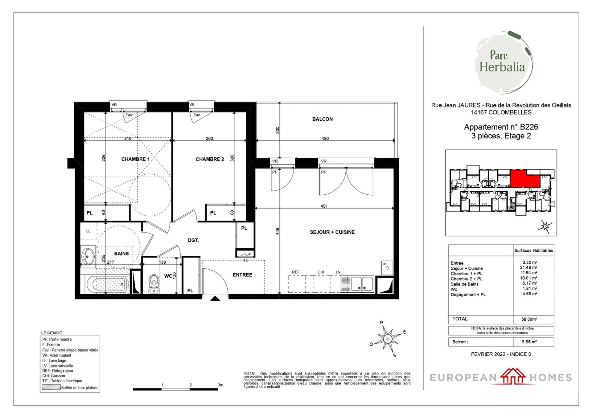
Appartement T3 de 58.39m² - COLOMBELLES
COLOMBELLES

Appartement T3 de 58.39m² - COLOMBELLES - 14460 COLOMBELLES Réf GL4017
759 €/mois CCProvision sur charges : 60 €Honoraires : 755 €
dont honoraires d'état des lieux 174 €
Dépot de garantie : 699 €
58m²
3 pièce(s)
2 chambre(s)
Description du bien
Appartement T3 de 58.39m² - COLOMBELLES
Pozzo immobilier vous propose à la location, un appartement de 3 pièces situé au 2ème étage avec ascenseur offrant : entrée avec placard, séjour avec cuisine ouverte aménagée et équipée (four, plaque de cuisson, hotte), deux chambres avec placard, salle de bains, dégagement avec placard, wc. Balcon et Parking.
Chauffage individuel gaz.
Disponible à partir du 13 Mars 2026!
Soumis à conditions de ressources

Loyer est de 759 euros CC (dont 60 euros de charges). Un dépôt de garantie de 699 euros est également demandé.

Les informations sur les risques auxquels ce bien est exposé sont disponibles sur le site Géorisques : www.georisques.gouv.fr
Bilan énergétique
DPE_ passoire énergétique logement extrêmement performant logement extrêmement peu performant consommation (énergie primaire) 83 kWh/m²/an émissions* 17 kgCO2/m²/an
DPE_ * Dont émissions de gaz à effet de serre peu d'émissions de CO2 émissions de CO2 très importantes 17 kgCO2/m²/an
Barème d'honoraires
Ce bien fait parti d'une co-propriété de 0 lots. Les charges sont de 0€ par an. Aucune procédure en cours.
Partager ce contenu
Caen Gestion-Location immatriculé(e) .
Conformément aux articles L611-1 et suivants et R612-1 et suivants du Code de la consommation, le consommateur est informé qu’il a la possibilité de saisir un ou notre médiateur de la consommation, à savoir situé

Echangeons ensemble

Agence
Caen Gestion-Location
02 31 30 49 49
239 Rue Caponière 14000 Caen
Prenez contact avec nous afin que nous puissions échanger sur vos projets immobiliers à Normandie. N’hésitez pas à utiliser ce formulaire pour décrire vos projets et vos attentes.
Loading...
Les informations recueillies sur ce formulaire sont enregistrées dans un fichier informatisé par Pozzo pour gérer votre demande de contact. Elles sont conservées pour la durée nécessaire à la gestion de la relation client dans le respect des prescriptions légales applicables et sont destinées au responsable de la publication de ce site : Pozzo.
Conformément à la loi « informatique et libertés », vous pouvez exercer votre droit d'accès aux données vous concernant et les faire rectifier en contactant Pozzo contact@pozzo.immo ou en utilisant ce formulaire. Nous vous informons de l’existence de la liste d'opposition au démarchage téléphonique « Bloctel », sur laquelle vous pouvez vous inscrire ici : https://www.bloctel.gouv.fr/

Découvrez des biens similaires

Exclusivité
50110 TOURLAVILLE
  • 107 m²
  • 4 pièces
  • 3 chambres
1 050 €/mois CC
Exclusivité
50000 SAINT LO
  • 47 m²
  • 2 pièces
  • 1 chambres
560 €/mois CC
Exclusivité
14400 BAYEUX
  • 60 m²
  • 3 pièces
  • 2 chambres
825 €/mois CC
Exclusivité
50000 SAINT LO
  • 39 m²
  • 2 pièces
  • 1 chambres
496 €/mois CC
Exclusivité
14200 HEROUVILLE SAINT CLAIR
  • 36 m²
  • 2 pièces
  • 1 chambres
506 €/mois CC
Exclusivité
14600 HONFLEUR
  • 40 m²
  • 2 pièces
  • 1 chambres
600 €/mois CC